
1. 통로의 조명 (제21조)
통로에는 75럭스 이상의 채광 또는 조명시설 설치
단, 갱도 또는 상시 통행을 하지 않는 지하실 등을 통행하는 근로자에게 휴대용 조명기구를 사용하도록 한 경우 제외
2. 통로의 설치 (제22조)
① 사업주는 작업장으로 통하는 장소 또는 작업장 내에 근로자가 사용할 안전한 통로를 설치하고 항상 사용할 수 있는
상태로 유지하여야 한다.
② 사업주는 통로의 주요 부분에 통로표시를 하고, 근로자가 안전하게 통행할 수 있도록 하여야 한다.
③ 사업주는 통로면으로부터 높이 2미터 이내에는 장애물이 없도록 하여야 한다.
다만, 부득이하게 통로면으로부터 높이 2미터 이내에 장애물을 설치할 수밖에 없거나
통로면으로부터 높이 2미터 이내의 장애물을 제거하는 것이 곤란하다고 고용노동부장관이
인정하는 경우에는 근로자에게 발생할 수 있는 부상 등의 위험을 방지하기 위한 안전 조치를 하여야 한다.

3. 가설통로의 구조 (제23조)
① 견고한 구조로 할 것
② 경사는 30도 이하로 할 것. 다만, 계단을 설치하거나 높이 2미터 미만의 가설통로로서 튼튼한 손잡이를 설치한 경우에는 그러하지 아니하다.
③ 경사가 15도를 초과하는 경우에는 미끄러지지 아니하는 구조로 할 것
④ 추락할 위험이 있는 장소에는 안전난간을 설치할 것. 다만, 작업상 부득이한 경우에는 필요한 부분만 임시로 해체할 수 있다.
⑤ 수직갱에 가설된 통로의 길이가 15미터 이상인 경우에는 10미터 이내마다 계단참을 설치할 것
⑥ 건설공사에 사용하는 높이 8미터 이상인 비계다리에는 7미터 이내마다 계단참을 설치할 것

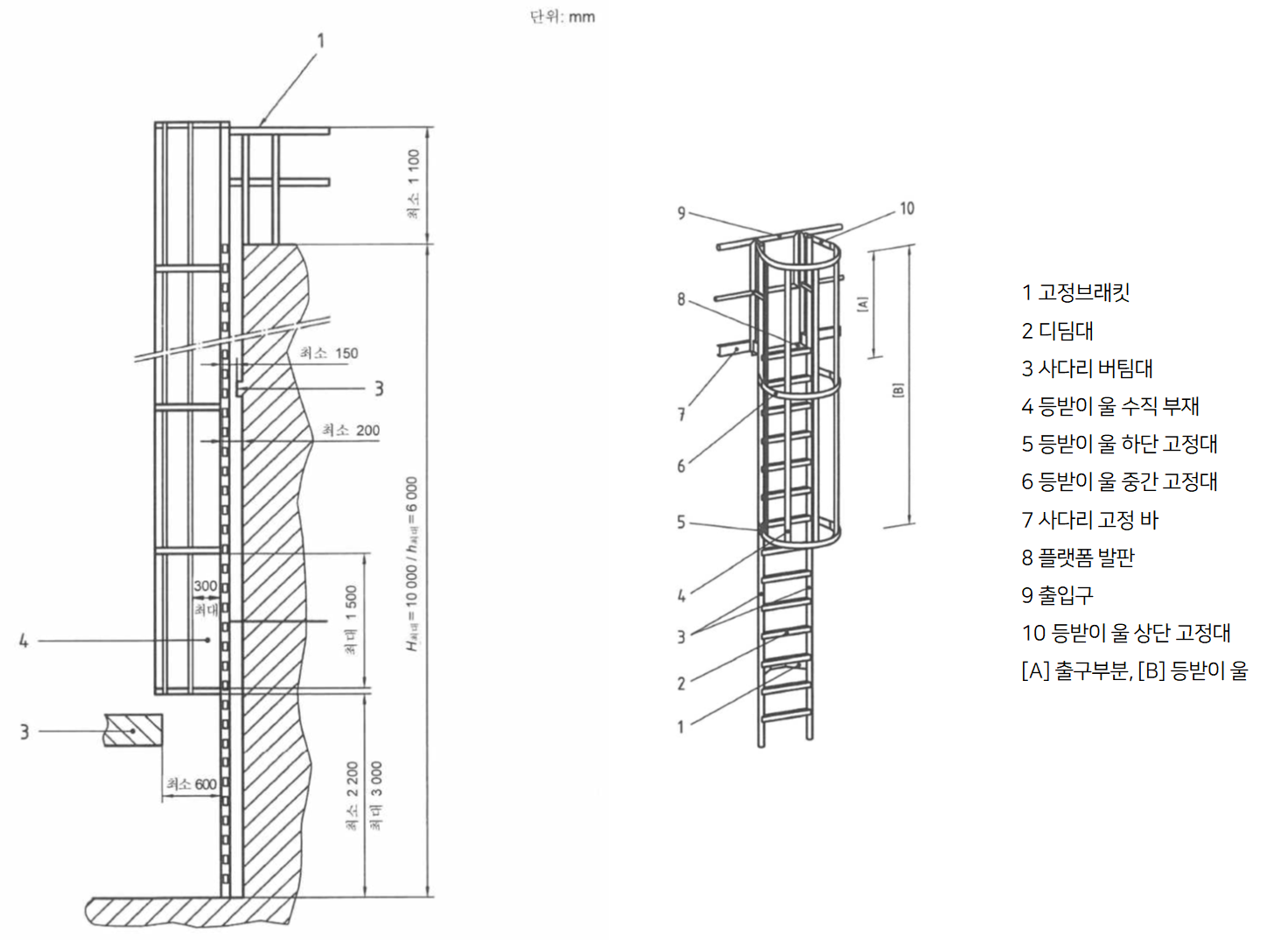
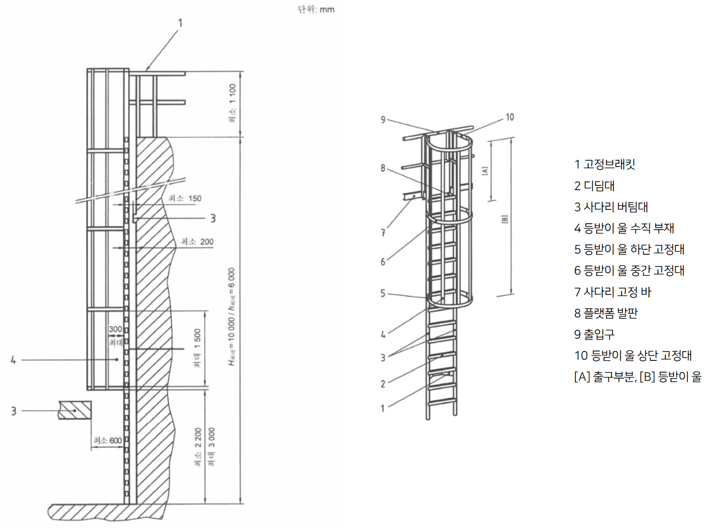
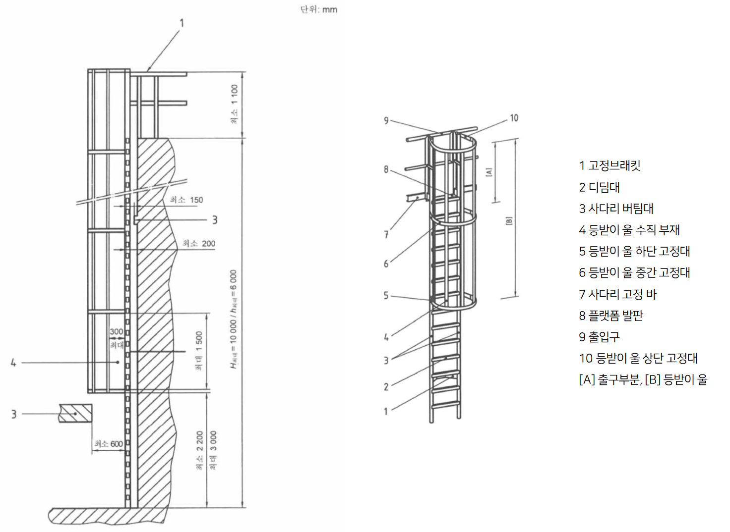
4. 사다리식 통로 등의 구조 (제24조)
① 견고한 구조로 할 것
② 심한 손상ㆍ부식 등이 없는 재료를 사용할 것
③ 발판의 간격은 일정하게 할 것
④ 발판과 벽과의 사이는 15센티미터 이상의 간격을 유지할 것
⑤ 폭은 30센티미터 이상으로 할 것
⑥ 사다리가 넘어지거나 미끄러지는 것을 방지하기 위한 조치를 할 것
⑦ 사다리의 상단은 걸쳐놓은 지점으로부터 60센티미터 이상 올라가도록 할 것
⑧ 사다리식 통로의 길이가 10미터 이상인 경우에는 5미터 이내마다 계단참을 설치할 것
⑨ 사다리식 통로의 기울기는 75도 이하로 할 것. 다만, 고정식 사다리식 통로의 기울기는 90도 이하로 하고, 그 높이가 7미터 이상인 경우에는 바닥으로부터 높이가 2.5미터 되는 지점부터 등받이울을 설치할 것
⑩ 접이식 사다리 기둥은 사용 시 접혀지거나 펼쳐지지 않도록 철물 등을 사용하여 견고하게 조치할 것
* 잠함(潛函) 내 사다리식 통로와 건조ㆍ수리 중인 선박의 구명줄이 설치된 사다리식 통로(건조ㆍ수리작업을 위하여 임시로 설치한 사다리식 통로는 제외한다)에 대해서는 제1항제5호부터 제10호까지의 규정을 적용하지 아니한다.



5. 갱내통로 등의 위험 방지
사업주는 갱내에 설치한 통로 또는 사다리식 통로에 권상장치(卷上裝置)가 설치된 경우 권상장치와 근로자의 접촉에 의한 위험이 있는 장소에 판자벽이나 그 밖에 위험 방지를 위한 격벽(隔壁)을 설치하여야 한다.
6. 계단의 강도
① 사업주는 계단 및 계단참을 설치하는 경우 매제곱미터당 500킬로그램 이상의 하중에 견딜 수 있는 강도를 가진 구조로 설치하여야 하며, 안전율[안전의 정도를 표시하는 것으로서 재료의 파괴응력도(破壞應力度)와 허용응력도(許容應力度)의 비율을 말한다)]은 4 이상으로 하여야 한다.
② 사업주는 계단 및 승강구 바닥을 구멍이 있는 재료로 만드는 경우 렌치나 그 밖의 공구 등이 낙하할 위험이 없는 구조로 하여야 한다.

7. 계단의 폭
① 계단을 설치하는 경우 그 폭을 1미터 이상으로 하여야 한다. 다만, 급유용ㆍ보수용ㆍ비상용 계단 및 나선형 계단이거나 높이 1미터 미만의 이동식 계단인 경우에는 그러하지 아니하다.
② 사업주는 계단에 손잡이 외의 다른 물건 등을 설치하거나 쌓아 두어서는 아니 된다.
8. 계단참의 높이
높이가 3미터를 초과하는 계단에 높이 3미터 이내마다 너비 1.2미터 이상의 계단참을 설치하여야 한다.
9. 천장의 높이
계단을 설치하는 경우 바닥면으로부터 높이 2미터 이내의 공간에 장애물이 없도록 하여야 한다. 다만, 급유용ㆍ보수용ㆍ비상용 계단 및 나선형 계단인 경우에는 그러하지 아니하다.
10. 계단의 난간
높이 1미터 이상인 계단의 개방된 측면에 안전난간을 설치하여야 한다.
'안전' 카테고리의 다른 글
| 어린이 안전사고 (0) | 2020.08.24 |
|---|---|
| 소음 및 진동에 의한 건강장해의 예방 (산업안전보건기준에관한규칙 제4장) (0) | 2020.08.20 |
| 안전난간의 구조 및 설치요건 (산업안전보건기준에관한규칙 제13조) (0) | 2020.07.29 |
| 조도(산업안전보건기준에관한규칙 제8조) (0) | 2020.07.28 |
| 직장 내 괴롭힘 (근로기준법 제76조의2) (0) | 2020.07.28 |
댓글